ЗакладкиЗаказы ЗАКАЗАТЬ

Задача 5-2-2-60

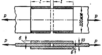
Рассчитать стык при условии равнопрочности соединения и основного металла. Допускаемые напряжения [σ]р = 1600 кг/см2 (для основного металла), [τ]э = 800 кг/см2 (для материала шва). Определить размеры накладок. Вычислить, насколько изменятся эти размеры, если накладки приварить в дополнение к фланговым еще и торцевыми швами (допускаемые напряжения для швов обоих типов принять одинаковыми).

Задача 5-2-2-60 | Сопротивление материалов

Статус: Задача не решена

Предмет: Сопротивление материалов

Ответ: не указан.